+90 552 184 39 36
+90 552 777 41 36
+90 533 921 12 85
info@novaprefabrik.com
Teklif Al
Konteynerler
Konteyner
WC Duş Konteynerler
Ofis Konteyneri
Yatakhane Konteyneri
Yemekhane Konteyneri
Demonte Konteyner
Konteyner Evler
Konteyner Fiyatları
Atık Konteynerları
Bizimle İletişime Geçin
Balçık Mah. 3225 Sk. No:33/1 Gebze KOCAELİ
+90 5521843936
info@novaprefabrik.com
Prefabrik Yapılar
Prefabrik Ofis
Prefabrik Yatakhane
Prefabrik Yemekhane
İşçi Kampı
Prefabrik Okul
Prefabrik Sosyal Tesis Binaları
Prefabrik Şantiye Yapıları
Prefabrik Hayvan Barınağı
Bizimle İletişime Geçin
Balçık Mah. 3225 Sk. No:33/1 Gebze KOCAELİ
+90 5521843936
info@novaprefabrik.com
Kabinler
Panel Kabin
WC Duş Kabin
Güvenlik Kabinleri
Bekçi Kulübesi
Büfe Kabini
Güvenlik Kulübesi
Metropol Kabin
Engelli WC Kabin
Mobo Kabin
Sandviç Panelli Modern Kabin
Kompozit Kaplamalı Kabinler
NovaCity Kabin
Bizimle İletişime Geçin
Balçık Mah. 3225 Sk. No:33/1 Gebze KOCAELİ
+90 5521843936
info@novaprefabrik.com
Prefabrik Evler
Prefabrik Ev Fiyatları
Tek Katlı Prefabrik Ev
İki Katlı Prefabrik Ev
Bizimle İletişime Geçin
Balçık Mah. 3225 Sk. No:33/1 Gebze KOCAELİ
+90 5521843936
info@novaprefabrik.com
Prefabrik Ev Fiyatları
Prefabrik Ofis
Projeler
Referanslar
Galeri
Blog
İletişim
Anasayfa
Konteynerler
Prefabrik Yapılar
Kabinler
Prefabrik Evler
Prefabrik Ev Fiyatları
Prefabrik Ofis
Projeler
Referanslar
Galeri
Blog
İletişim
+90 552 184 39 36
0262 744 0 444
info@novaprefabrik.com
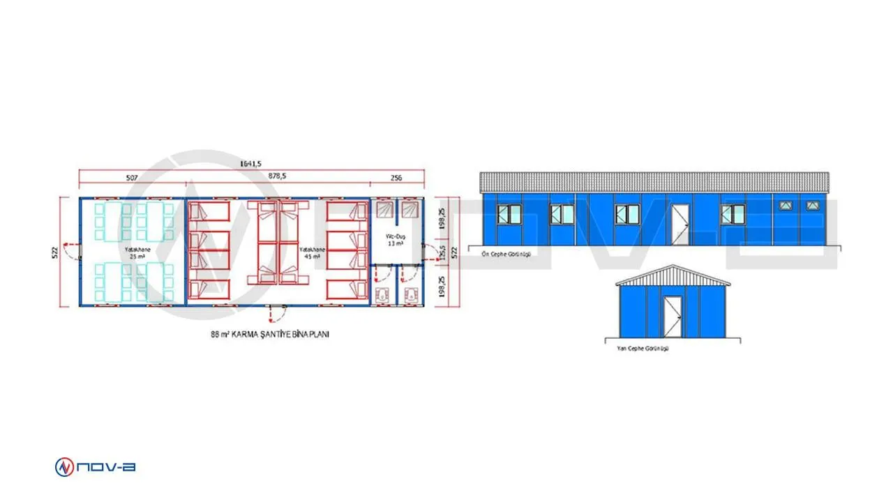
88 m² Prefabrik Karma Şantiye
Anasayfa
Ürünler
Prefabrik Yapılar
Prefabrik Şantiye Yapıları
88 m² Prefabrik Karma Şantiye
Teklif Al
Planı Gör
Ölçüler
Yükseklik
250 cm
Uzunluk
1641,50 cm
Genişlik
522 cm
m²
88 m²
Teknik Özellikler
Teknik Özellikler
Bina Yüksekliği
250 cm
Dış Duvarlar
6 cm - 10 cm (Opsiyonel )
İç Duvar
6 cm - 10 cm (Opsiyonel )
Dış Kapı
İzoleli Sac Kapı
İç Kapı
Amerikan Kapı
Pencereler
Beyaz Renk PVC Pencere
Çatı Kaplaması
Naturel Galvaniz Sac,(Boyalı Galvaniz Sac ,Metal Kiremit (Opsiyonel))
Elektrik Tesisatı
Sıva Altı
Sıhhi Tesisat
Sıva Altı
Dış Cephe Boyası
Silikonlu Dış Cephe Boyası
İç Cephe Boyası
Plastik İç Cephe Boyası
Prefabrik Şantiye Yapıları
88 m² Prefabrik Karma Şantiye
Ürünü İncele
Teklif Al
113 m² Prefabrik Karma Şantiye
Ürünü İncele
Teklif Al
204 m² Prefabrik Karma Şantiye
Ürünü İncele
Teklif Al
Bizimle İletişime Geçin
Fırsatlardan İlk Siz Haberdar Olun
Sizlere daha iyi hizmet sağlayabilmek, kabin ve prefabrik dünyasında gelişen fırsatlardan haberdar olmak, kafanıza takılan sorulara yanıt bulmak için bizimle iletişim kurabilirsiniz.
İletişim
Kişisel Bilgilerinizi Girin
*Ad / Soyad
*E-posta
*Telefon
Mesajınız
KVKK ve Gizlilik Sözleşmesini
okudum, onaylıyorum.
Nova Prefabrik bültenine kayıt olmayı kabul ediyorum.
Formu Gönder
Whatsapp
×
Merhaba
Size nasıl yardımcı olabiliriz?
Sohbete Başla
Teklif Al
*Ad / Soyad
*E-posta
*Telefon
Mesajınız
KVKK ve Gizlilik Sözleşmesini
okudum, onaylıyorum.
Nova Prefabrik bültenine kayıt olmayı kabul ediyorum.
Formu Gönder